HIŠA Z LEPIM RAZGLEDOM
Investitorja sta na zazidljivi parceli v hribovski vasici pod Jelovico želela zgraditi enodružinsko hišo. Zemljišče se nahaja čisto na vrhu hribovskega naselja, pravzaprav v delu vasi, ki leži nekoliko višje od glavnine naselja. Teren na parceli se vzpenja proti severu, v nasprtoni smeri pa se odpirajo prekrasni pogledi na okoliška hribovja, najleše pa proti zahodu, kjer se odpira pogled na Ratitovec. Po južnem robu parcele poteka dovozna cesta do ostalih hiš na tem delu, kar sicer predstavlja malo prometa.
Konfiguracija terena je sama po sebi narekovala, da je hiša podkletena. Nad kletjo naj bi bilo še pritličje in mansarda. Želja investitorejev je bila preprosta družinska hiša, ki se bo zlila z okoliško arhitekturo, pri tem je pomembna tudi cena. V sklopu priprave idejne zasnove je bilo pripravljenih več variant. S tem da je bila največja dilema, kako ob upoštevanju raščenega terna objekt postaviti na parcelo, da bo mogoče urediti dovoz v kletno garažo, zunanji dostop do vhoda v pritlčje ter pritličje kar najbolje povezati z neposrednim dostopom na teren.
V izhodišču sta imala investitroja v mislih izvedbo, kjer se uvoz v garažo izvede na vzhodni strani, kjer je lokalna cesta na najvišji točki. Pri takšni umestitvi objekta v prostor se je izkazalo, da se na ta način porabi veliko prostora za sam dovoz, ob enem pa nam to tudi ne omogoči idelane razporeditve v notranjosti.
Zaradi tega je bila pripravljena tudi varianta, kjer je dovoz v garažo urejen direktno iz lokalne ceste. Na ta način smo zmanjšali tlakovane dovozne površine, ki se lahko ob eneme bolj optimalno izrabijo za dodatna parkirišča. Glavni vhod se je s tem premaknil na vzhodno stran, kar je omogočilo boljšo organizacijo notranjosti. Ob enem pa je ostala odprta tudi možnost, da se enkrat kasneje, če se izkaže potreba, lahko na severni strani z minimalnimi posegi uredi dodatni vhod in s tem loči masnardno etažo v samostojno stanovanje.
Povezava pritličja s terenom se tako zgodi na zahodni strani. Za dosego tega je predvidno, da se teren na jugozahodni strani nasuje, da pridobimo večji plato v nivoju pritličja. Na ta način hišo tudi optično pomanjšamo ter ob enem dosežemo bolj intimen zunanji prostor, ko ga umaknemo od pogledov mimovozečih vozil. Prav tako pa bodo z ustvarjeno zgornjo ploščadjo še poudarjeni najleši pogledi. Pripravljena je bila sicer tudi varianta, kjer je slika zrcalna, torej da je uvoz v garažo na zahodni strani in da so zunanje bivalne površine na vzhodni strani, kar bi bilo mogoče bolj smiselno iz nekaterih vidikov, vendar so najlepši pogledi prevladali.
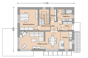
V prostorski ureditvi kleti je večji del zasedla garaža za dve osebni vozili. Poleg garaže se je uredila še kurilnica, utility in kletni prostor. V pritličju se je na južni polovici uredil bivalni prostor s kuhinjo in jedilnico. Na severni polovici pa so nanizani sanitarni prostori, shramba stopnišče ter na severozahodnu še večji prostor, ki je sprva predviden kot kabinet, kasneje pa bi bila lahko tudi glavna spalnica. V mansardi so se uredili spalni prostori v obsegu štirih sob in kopalnice.
Projekt: IDZ, PGD, PZI (2014)
Izvedba: 2015, 2016
Neto površina: 225 m2
Predvidena investicija (projekt, izvedba): 230.000,00 eur


