LESENA HIŠA IZ BRUN
Investitor je poiskal našo pomoč, ker je nameraval na mestu obstoječega starejšega objekta zgraditi novo enodružinsko leseno hišo iz brun. Omenjena parcela se nahaja na robu manjšega naselja na Gorenjskem, na dobro osončeni legi z lepim razgledom na polja in bližnji gozd.
Obstoječa hiša je bila delno lesena in delno zidana. Leseni del je bil zgrajen iz lesenih brun, vezanih na čepe, način gradnje, ki je bil v teh krajih v preteklosti pogost. Hiša je bila zaradi svoje starosti in neustreznega temeljenja že dotrajana do te mere, da ni bilo več smiselno njeno obnavljanje, zato se je stranka odločila za njeno rušitev in izgradnjo nove hiše.
Je pa pri stranki ostala povezanost z lesom do te mere, da se je odločila tudi novo hišo zgraditi z masivno leseno konstrukcijo, ki bi konstrukcijsko posnemala nekoč zelo razširjeno gradnjo.
Želja stranke je bila, da je hiša čim manjša. Prav tako je imela že precej jasno razdelano, katere prostore želi imeti in je pripravila okvirno skico. Naša naloga je bila predvsem smiselno organizirati prostor tako, da je funkcionalno optimalen in da so prostori pravilno dimenzionirani. Samo lupino hiše, ki je že sama po sebi v precejšnji meri definirana z izbrano gradnjo iz brun, pa oblikovati tako, da bodo uporabljena prava razmerja, ki temeljijo na stari arhitekturi in interpretirana na nov način.
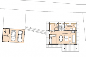
Nova stanovanjska hiša je zunanjih dimenzij 10,00 x 8,00 m, s pritličjem in mansardo. Poleg hiše bo zgrajen še prilični nadstrešek z manjšim zaprtim prostorom za spravilo orodja in koles.
Tlorisno je pritličje razdeljeno na južni del z bivalnim prostorm, ki se odpira na zunanji vrt, pogledi pa se skozi okna odpirajo na okoliške travnike in bližnji gozd. V zadnjem delu so urejni spremljajoči prostori, kot so WC, kurilnica in utility. V primeru, ko je hiša brez kleti, morajo biti spremljajoči prostori organizirani bistveno bolj racionalno in skromno.
Pripadajoča parcela je vzdolžna, postavljena ob cesto. Hiša je postavljena na zgornji rob parcele ob cesti, kolikor dopuščajo predpisi. Spremljajoči nadstrešek z dovozom smo odmaknili od hiše in nekoliko več tudi od ceste, da nam ta ne zakriva pogleda na hišo, ko prihajamo po cesti. Na južni strani hiše se odpira velik vrt, ki se optično še podaljša s prostranimi travniki.
Členitev fasade z okni uporablja enak princip, kot so ga uporabljali že včasih. Hiša je s svojimi odpritnami izrazito usmerjena proti jugu, na severno stran, kjer je tudi cesta, pa se odpira z minimalnimi odprtinami.
Projekt: IDZ (2012) PGD, PZI (2013)
Gradnja: predvidoma 2014-2016
Neto tlorisna površina: 128 m2
Investicija: 160.000,00




